Código:0437
Precio:$ 470.000.000
Estado: Nueva
Habitaciones: 3
Baños: 2
Área construida: 79m2
Área terreno:
Administración:
Asesor Juan Esteban Arciniegas H. gerencia@levels.com.co 3147558832

Esta espectacular casa en Kaoba en la variante Condina rompe con todos los estándares de construcción de conjuntos cerrados al integrar espacios en un solo nivel con calidad y confort para su vida, su familia, su trabajo y su recreación, haciendo de su hogar una experiencia práctica, cómoda y feliz. 

La propiedad se destaca por sus cómodos e iluminados espacios, ubicada en la Variante Condina cuenta con amplias vías de acceso pavimentadas y su entorno se conforma por una amplia reserva natural, el conjunto contara con excelente zona social con piscina, salón social, parques y mucho mas.

 

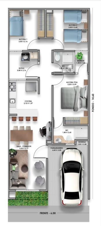
La vivienda tiene la siguiente distribución:

 

Parqueadero

Cuarto útil

Sala

Comedor

Cocina 

Zona de ropas 

Habitación auxiliar 1 con closet

Habitación auxiliar 2 con closet

Baño del alcobas

Habitación principal con baño y closet

  

Propiedades Relacionadas

Nueva

Extraordinaria casa remod..., Cerritos, Pereira

3Hab
3Baños
$ 1.030.000.000Precio
Nueva

Extraordinaria casa en Al..., Av. 30 de Agosto, Pereira

3Hab
3Baños
VendidaPrecio
Nueva

Extraordinaria casa esqui..., Av. 30 de Agosto, Pereira

3Hab
3Baños
VendidaPrecio